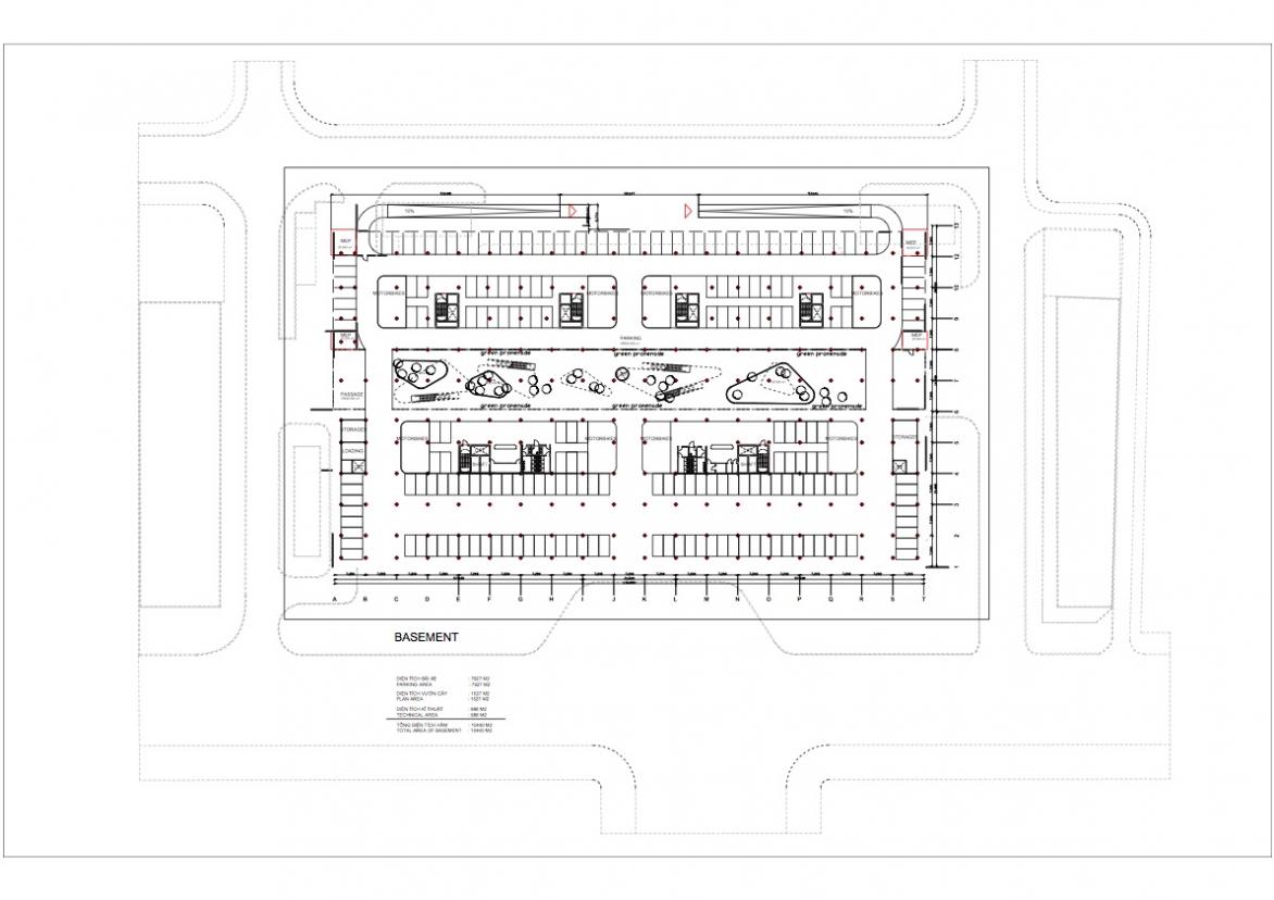
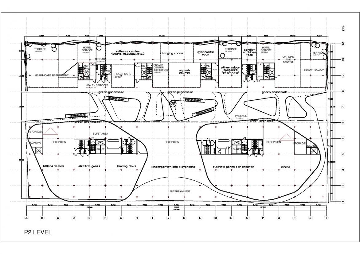
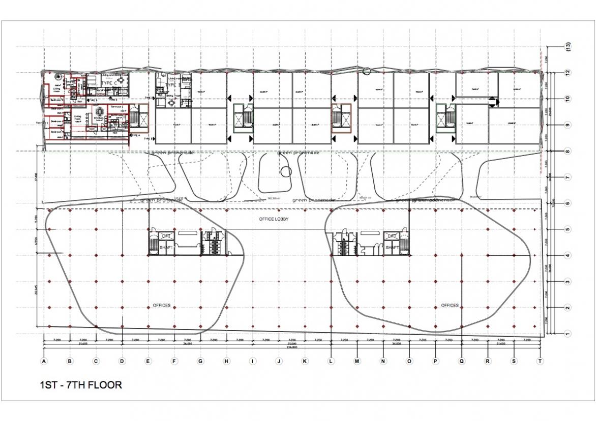
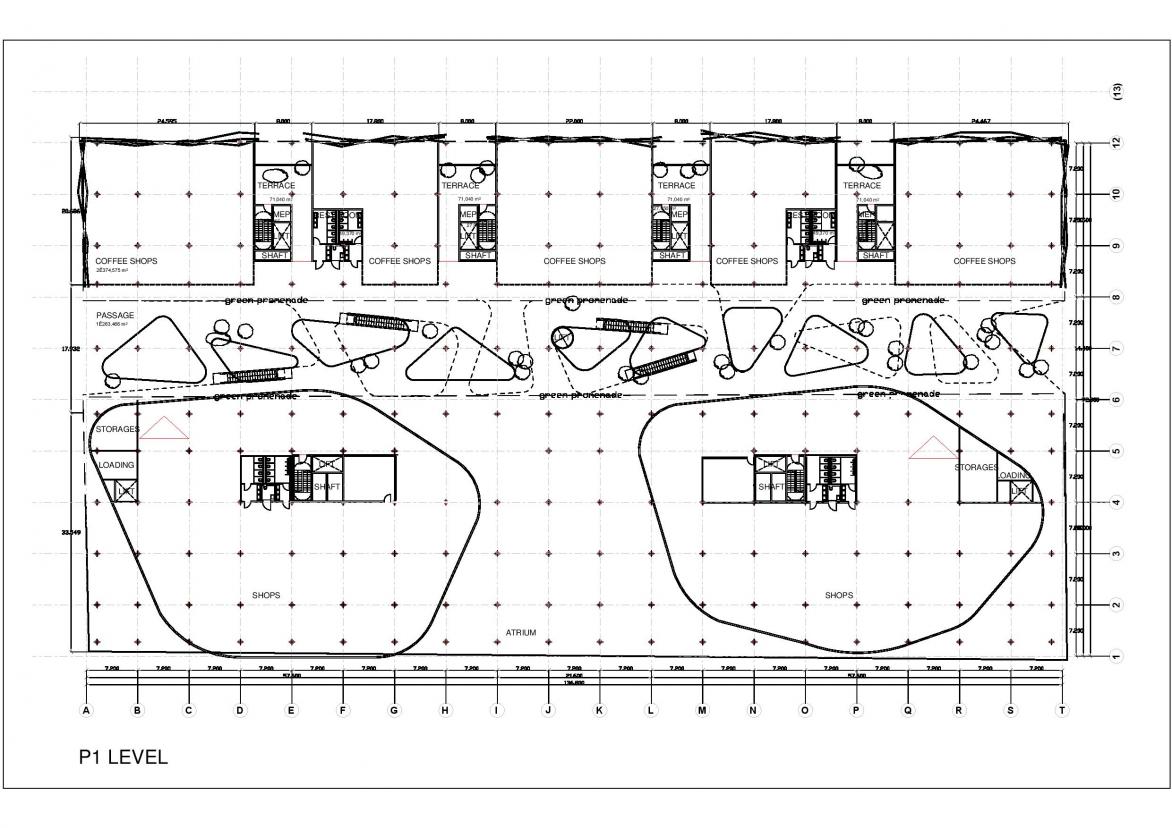
Malls and Mixed Use Developments in Vietnam
Vietnam
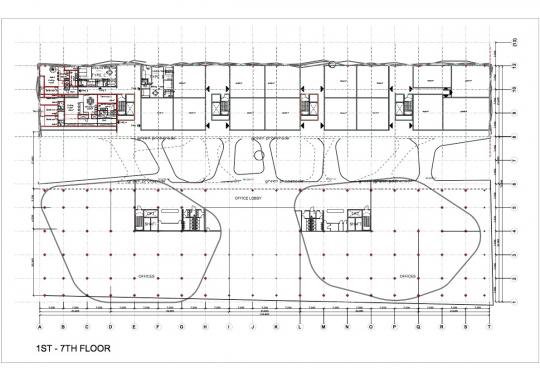
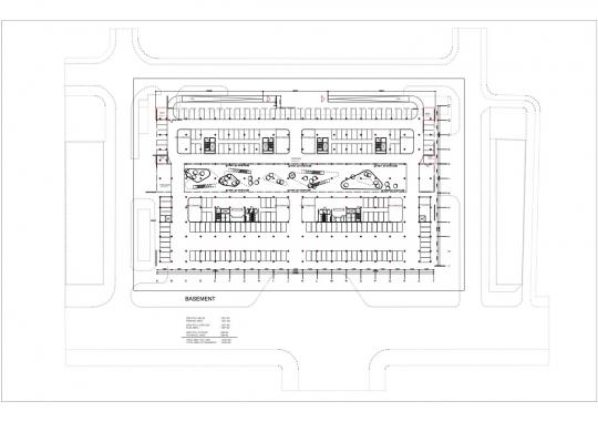
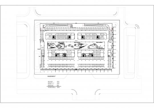
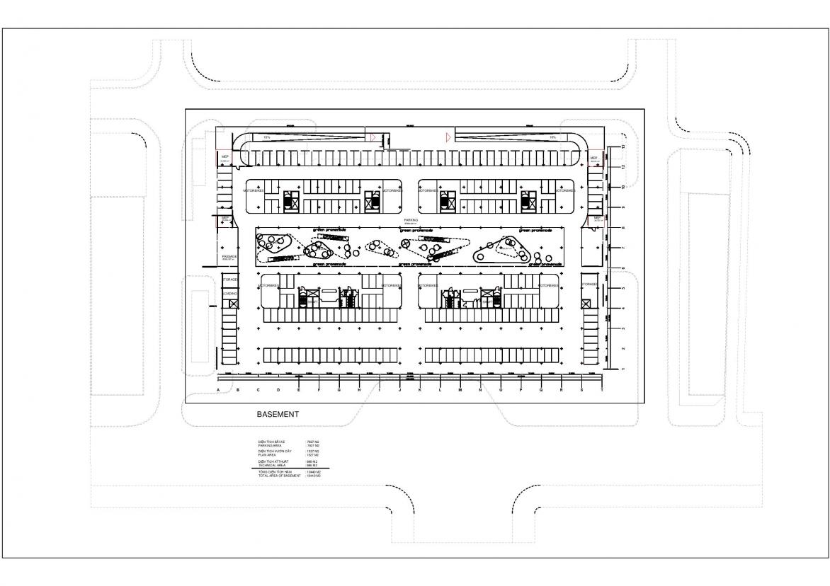
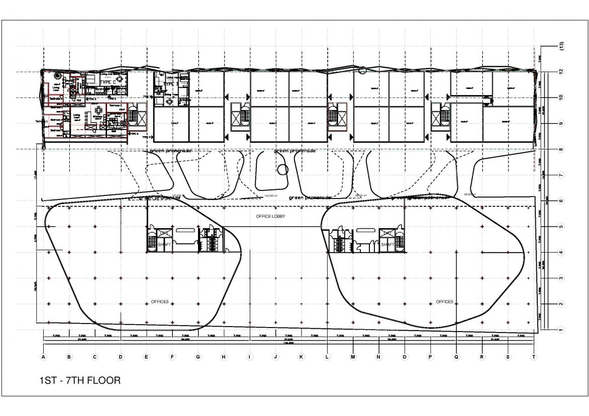
Master Planning, Architectural- , Landcape- and Interior Design services in several locations in Vietnam.
Client: SUSCA - INVESCONS
Location: Ho Chi Minh City, Ha Long Bay city, Danang city, Hanoi city, Vietnam
Scope: Master Planning, Architecture, Interior Design, Site Supervision
Plot Size: various
Built Up Area: various
Value: 400-800 million AED
Status: approved design
















