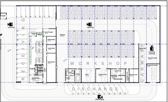
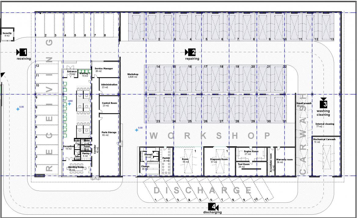
Al Futtaim Workshop
AD
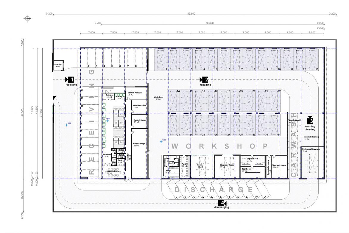
Architectural and Interior Design for a workshop building in Mussafah Area of Abu Dhabi.
Client: Al Futtaim Motors
Location: Abu Dhabi
Scope: Concept Design, Construction Documentation, Site Supervision, Design Management
Plot Size: 4,950 sqm
Built Up Area: 3,300 sqm
Value: 6.5 Million AED
Status: Construction Completed










